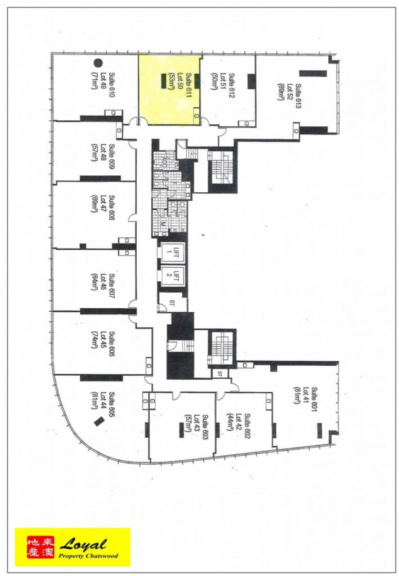
Suite 611/7 Railway Street, CHATSWOOD
overview
-
1P0206
-
Offices
-
Sold
-
53 sqm
Description
** UNDER CONTRACT **
"ERA" Building Office For Sale
- 'A' Grade near new Strata Office, 53sqm approx.
- A kitchenette inside.
- Office entrance has exposure to the lift.
- Office suite facing north aspect, lots of natural light and view.
- In the heard of Chatswood CBD, retail hub and stroll to train station.
- Located on the Level 6th of ERA commercial suites, Mirvac has almost 300 apartments above the commercial suites.
- Lease expiry: April 2018. No option.
- Inspection: By Appointment Only
** Strata: $1,159p/q - Council: $292p/q
- Water $177p/q approx.**
Enquiry: Michael Zhong 0403 656 600
Raymond Yam 0414 930 188
- 'A' Grade near new Strata Office, 53sqm approx.
- A kitchenette inside.
- Office entrance has exposure to the lift.
- Office suite facing north aspect, lots of natural light and view.
- In the heard of Chatswood CBD, retail hub and stroll to train station.
- Located on the Level 6th of ERA commercial suites, Mirvac has almost 300 apartments above the commercial suites.
- Lease expiry: April 2018. No option.
- Inspection: By Appointment Only
** Strata: $1,159p/q - Council: $292p/q
- Water $177p/q approx.**
Enquiry: Michael Zhong 0403 656 600
Raymond Yam 0414 930 188
