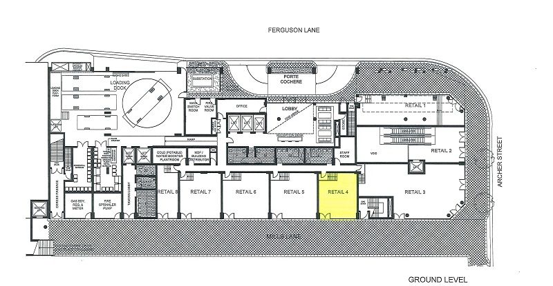
Shop 4/88 Archer Street, Chatswood
overview
-
1P2258
-
Retail
-
Leased
-
1
Description
Unbeatable Location in the Heart of Chatswood
- Located near corner of Archer Street and Mills lane, Chatswood
- Area: 48sqm plus 1 car space
- Reversed cycle air-conditioning unit
- Suitable for retail uses, small takeaway, coffee/ cake shop and variety of uses
- Flexible terms and offer incentive
- Opposite to Chatswood Chase Shopping Centre entrance
- Loading dock available
- Local population over 20,000 and a large amount of travellers in the area
Inspection: By Appointment Only
Contact : Raymond Yam 0414 930 188 / Michael Zhong 0403 656 600
- Area: 48sqm plus 1 car space
- Reversed cycle air-conditioning unit
- Suitable for retail uses, small takeaway, coffee/ cake shop and variety of uses
- Flexible terms and offer incentive
- Opposite to Chatswood Chase Shopping Centre entrance
- Loading dock available
- Local population over 20,000 and a large amount of travellers in the area
Inspection: By Appointment Only
Contact : Raymond Yam 0414 930 188 / Michael Zhong 0403 656 600
Features
- Car Parking - Surface
- Close to Shops
- Close to Transport
- Loading Dock
